TESY EV7/5S2 200 60 Pufferspeicher für Solar-/Boileranlagen mit 2 Wärmetauscher | 200 Liter
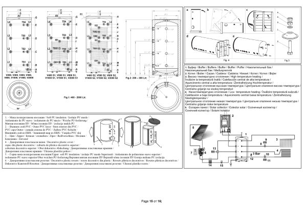
Standspeicher mit zwei Wärmetauschern. IHWTs für Solar-/Kesselsysteme EEC B & C. Das Sortiment umfasst Modelle mit Volumen von 160 bis 2.000 Liter mit zwei Wärmetauschern. Geeignet, um die Anforderungen von Ein- und Mehrfamilienhäusern oder Industriebedarf zu decken.
Produkteigenschaften:
Hochwertige Emaillierung für lange Lebensdauer | Hocheffiziente PU-Isolierung | Effizienter Anodenschutz | Wartungsflansch zur einfachen Inspektion des Geräts | Option zum Einbau eines elektrischen Heizelements | Option zum Einbau eines Thermoreglers | Option zum Einbau eines Thermosensors
Technische Änderungen und Irrtümer vorbehalten ! Zwischenverkauf vorbehalten !
Der Austritt von Kältemittel trägt zum Klimawandel bei. Kältemittel mit geringerem Treibhauspotential (GWP) tragen im Fall eines Austretens weniger zur Erderwärmung bei als solche mit höherem Treibhauspotential (GWP). Ein Austreten von 1 kg dieses Kältemittels hätte somit eine dem GWP-Wert des Kältemittels entsprechend größere Auswirkungen auf die Erderwärmung als 1 kg CO2, bezogen auf hundert Jahre. Keine Arbeiten am Kältekreislauf vornehmen oder das Gerät zerlegen – stets Fachpersonal hinzuziehen.
| Produkteigenschaft | Wert |
|---|---|
| Hersteller: | Tesy |
| Kategorie: | Pufferspeicher |
| Artikelnummer: | 20545 |
| Energieeffizienz Heizen: | |
| Speicher Volumen (l): | |
| Ausführung Inneneinheit: | |
| Versandgewicht: | 30,00 kg |
| Artikelgewicht: | 70,00 kg |