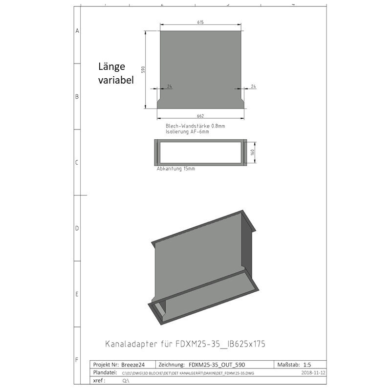
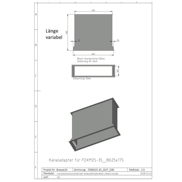
Penka Kanaladapter für Daikin FDXM25/35 unisoliert | isoliert
ISOLIERT für Zuluft | OHNE für Abluft.
ACHTUNG: Sonderanfertigung, keine Rückgabe möglich !
Zuluft-Formteile mit 13 mm Außen-Isolierung
Abluft-Formteile ohne Isolierung
Technische Änderungen und Irrtümer vorbehalten ! Zwischenverkauf vorbehalten !
| Produkteigenschaft | Wert |
|---|---|
| Hersteller: | Penka |
| Kategorie: | Kanaladapter |
| Artikelnummer: | 18636 |
| Versandgewicht: | 15,00 kg |
Herstellerinformationen:
Penka