Mitsubishi Heavy Klimaanlage für 1 Zimmer mit 40 - 45 m²
zum Kühlen | Heizen | Entfeuchten | Luftreinigen.
Innengerät Mitsubishi Heavy FDE40VH | 4.0 kW
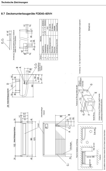
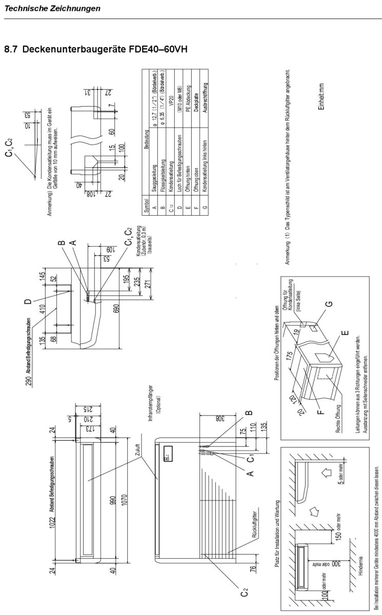
Deckenunterbaugeräte zum Kühlen & Heizen.
Das Innengerät ist ein anschluss- und betriebsbereites Klimagerät zum Kühlen und Heizen für die Unterdeckenmontage. Die große Wurfweite des Luftstroms und die flache Bauweise machen diese Geräte besonders attraktiv.
- Optimale Luftverteilung durch Microcomputer-gesteuerte Luftausblaslamellen
- Auswaschbare Filter
- Selbstdiagnosesystem
- Schnellheizfunktion
- Individuell einstellbare Pendellamelle
- Energiesparender DC-Ventilator
- Flache Bauweise
- Große Wurfweite (bis zu 7,5 m)
- Störmeldekontakt für externe Kondensatpumpe
Außengrät Mitsubishi Heavy FDC40ZSX-W1 | 4.0 kW
Das Gehäuse ist selbsttragend und besteht aus einem verzinkten Grundrahmen und leicht zu entfernenden einbrennlackierten Paneelen. Die „Blue-Fin“-Beschichtung des Wärmetauschers bewirkt einen Schutz vor Korrosion. Ein leistungsgeregelter Scroll-Verdichter passt seine Drehzahl der geforderten Leistung an. Der DC-Inverter-Kompressor ist mit einer Ölwannenheizung ausgestattet, auf Schwingungsdämpfern gelagert und vor Überhitzung und Taktung geschützt.
Der Kältekreislauf besteht neben dem Verdichter u. a. aus folgenden Komponenten: Heißgasschalldämpfer, Ölabscheider, 4-Wege-Umschaltventil, optimierter großflächiger Wärmetauscher, elektronische Expansionsventile, Sammler, Flüssigkeitsabscheider, Absperrventile und Schraderventile Hochdruckschalter, Niederdrucksensor, Temperaturfühler. Ein geregelter Ventilator mit DC-Motor sorgt geräuscharm für eine Optimierung der Kondensationstemperatur.
- Energieeffizientes, extrem kompaktes Außengerät
- Die Stellfläche beträgt weniger als 0,4m²
- Geräuschreduzierter Betrieb möglich (Silent-Mode)
1201012
Technische Änderungen und Irrtümer vorbehalten ! Zwischenverkauf vorbehalten !
Der Austritt von Kältemittel trägt zum Klimawandel bei. Kältemittel mit geringerem Treibhauspotential (GWP) tragen im Fall eines Austretens weniger zur Erderwärmung bei als solche mit höherem Treibhauspotential (GWP). Ein Austreten von 1 kg dieses Kältemittels hätte somit eine dem GWP-Wert des Kältemittels entsprechend größere Auswirkungen auf die Erderwärmung als 1 kg CO2, bezogen auf hundert Jahre. Keine Arbeiten am Kältekreislauf vornehmen oder das Gerät zerlegen – stets Fachpersonal hinzuziehen.
| Produkteigenschaft | Wert |
|---|---|
| Hersteller: | Mitsubishi Heavy |
| Kategorie: | Deckenunterbaugerät |
| Artikelnummer: | 16050 |
| GTIN: | 4251459826543 |
| Ausführung Inneneinheit: | |
| Gerätetyp: | |
| Kältemittel Typ: | |
| Energieeffizienz Kühlen: | |
| Energieeffizienz Heizen: | |
| Anzahl der Innengeräte: | |
| WiFi/WLAN Funktion: | |
| Kühl-/Heizleistung IG: | |
| Kühl-/Heizleistung AG: | |
| Schalldruckpegel min.: | |
| Empfohlene Raumgröße: | |
| Einsatzbereich Kühlen: | |
| Einsatzbereich Heizen: | |
| Versandgewicht: | 45,00 kg |
| Artikelgewicht: | 73,00 kg |