Mitsubishi Heavy Klimaanlagen Set für 4 Räume mit je 25 | 25 | 35 | 50 m²
zum Kühlen | Heizen | Lüften | Luftreinigen.
Innengeräte Mitsubishi Heavy 4-Wege-Deckenkassette Euroraster Standardpaneel | 2 x FDTC25VH1 | FDTC35VH1 | FDTC50VH | 2 x 2.5 kW | 3.5 kW| 5.0 kW
Fortschrittlichste Inverter-Steuerung
Das Wandgeräte-Set ist mit modernster Inverter-Technologie ausgestattet. Die Leistungsaufnahme wird dem aktuellen Bedarf angepasst, so dass nur die Leistung bereitgestellt wird, die auch wirklich benötigt wird. Dies reduziert einen übermäßig hohen Energieverbrauch.
Leistungsfähiger Betriebsbereich
Diese Geräte bieten einen leistungsstarken Anlauf, damit die Lücke zwischen der gewünschten und tatsächlichen Raumtemperatur schnell geschlossen wird. Ob Kühlen an heißesten Sommertagen oder Heizen in einer kalten Winternacht, sobald die gewünschte Temperatur erreicht ist, wird eine gleichbleibende und komfortable Zimmertemperatur gehalten.
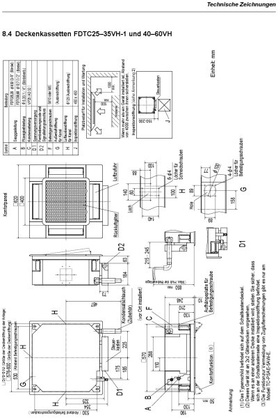
Kondenswasserpumpe
Die integrierte Kondenswasserpumpe hat eine Förderungshöhe von 850 mm.
Luftauslass
Erfolgt 4-seitig. Die Kassette kann durch Verschließen der Zuluftöffnungen auch 2- oder 3-wegig eingesetzt werden. Bei horizontaler Luftklappeneinstellung entsteht ein Coanda-Effekt. Luftleitlamellen motorbetrieben und auf jeder Seite individuell einstellbar für komfortable, zugfreie Lufteinbringung. Frischluftanschluss ist standardmäßig vorbereitet.
Ausgezeichnetes Design
Das gradlinige Designkonzept wurde mit dem Good-Design-Award ausgezeichnet. Sein unauffälliges Erscheinungsbild besticht in jeder Raumgestaltung. Die Blendenhöhe von nur 10 mm sorgt für ein harmonisches Deckenbild.
- 4-seitig ausblasende Deckenkassette zum Kühlen und Heizen
- 4 individuell einstellbare Pendellamellen (mit Kabelfernbedienung)
- integrierter Frisch- und Fortluftanschluss
- Eingebaute Kondensatpumpe mit einer Förderhöhe von 850 mm
- Schauglas zur einfachen Inspektion der Kondensatwanne
- Energiesparender DC-Ventilator
- Optionaler Präsenzmelder zur Erkennung von menschlicher Aktivität im Raum
Außengerät Mitsubishi Heavy SCM80ZS-W | 8.0 kW | 9.3 kW
Das Gehäuse ist selbsttragend und besteht aus einem stabilen verzinkten Grundrahmen und leicht zu entfernenden einbrennlackierten Paneelen. Die Teile und Bleche sind mit Edelstahlschrauben verbunden. Ein leistungsgeregelter Verdichter passt seine Drehzahl der geforderten Leistung an.
Der hocheffiziente und extrem leise laufende DC-Inverter-Kompressor ist auf Schwingungsdämpfern gelagert sowie vor Überhitzung und Taktung geschützt. Der Kältekreislauf dieser Luft/Luft-Wärmepumpe besteht neben dem Verdichter u. a. aus folgenden Komponenten: Heißgasschalldämpfer, 4-Wege-Umschaltventil, speziell beschichteter Wärmetauscher (Clear Fin) aus Kupferrohr mit aufgepressten Aluminiumlamellen, elektronisches Expansionsventil, Sammler, Filter, Rückschlagventile, Absperrventile, Schraderventile sowie Temperaturfühler.
Die Inverter-Steuerung gewährleistet eine stufenlose Leistungsanpassung im Teillastbetrieb. Durch diese Leistungsoptimierung werden Energieverbrauch und damit Betriebskosten reduziert. Ein geregelter Ventilator mit DC-Motor sorgt geräuscharm für eine Optimierung der Kondensationstemperatur. Ein Winterbetrieb ist serienmäßig bis -15°C gewährleistet. Die vollautomatische Mikroprozessor-Regelung arbeitet Anlagen optimierend und kommuniziert über Bus-Signale mit dem angeschlossenen Innengerät. Stromsensor, Noise Killer, Spark Killer. Ölrückführung und automatische Abtausteuerung sind gewährleistet. Ein Silent-Mode-Betrieb kann über die Fernbedienung des Innengeräts zeitabhängig programmiert werden und sorgt für einen schallreduzierten Betrieb.
Das Außengerät kommuniziert über ein Bus-Signal mit dem angeschlossenen Innengerät. Die Spannungsversorgung erfolgt über das Außengerät. Eine Bus-Leitung gewährleistet die Kommunikation zwischen Innen- und Außengerät. Die elektrische Verbindung zwischen Innen- und Außengerät ist 4-adrig.
Merkmale:
- Inverter gesteuert
- Automatische Abtaufunktion im Wärmepumpenbetrieb
- Geräuschreduzierter Betrieb möglich (Silent-Mode)
- Kompressor Überhitzungsschutz
- Überlastschutz für Kühl- und Heizbetrieb
Technische Änderungen und Irrtümer vorbehalten ! Zwischenverkauf vorbehalten !
Der Austritt von Kältemittel trägt zum Klimawandel bei. Kältemittel mit geringerem Treibhauspotential (GWP) tragen im Fall eines Austretens weniger zur Erderwärmung bei als solche mit höherem Treibhauspotential (GWP). Ein Austreten von 1 kg dieses Kältemittels hätte somit eine dem GWP-Wert des Kältemittels entsprechend größere Auswirkungen auf die Erderwärmung als 1 kg CO2, bezogen auf hundert Jahre. Keine Arbeiten am Kältekreislauf vornehmen oder das Gerät zerlegen – stets Fachpersonal hinzuziehen.
| Produkteigenschaft | Wert |
|---|---|
| Hersteller: | Mitsubishi Heavy |
| Kategorie: | 4 und mehr 4-Wege-Deckenkassetten-Euroraster |
| Artikelnummer: | 16273 |
| GTIN: | 4251459823597 |
| Ausführung Inneneinheit: | |
| Gerätetyp: | |
| Kältemittel Typ: | |
| Energieeffizienz Kühlen: | |
| Energieeffizienz Heizen: | |
| Einsatzbereich Heizen: | |
| Kühl-/Heizleistung IG: | |
| WiFi/WLAN Funktion: | |
| Anzahl der Innengeräte: | |
| Schalldruckpegel min.: | |
| Einsatzbereich Kühlen: | |
| Empfohlene Raumgröße: | |
| Versandgewicht: | 90,00 kg |
| Artikelgewicht: | 117,00 kg |