Mitsubishi Heavy Klimaanlagen Set für 4 Zimmer mit je 25 | 35 | 35 | 50 m²
zum Kühlen | Heizen | Entfeuchten | Luftreinigen.
Innengeräte Mitsubishi Heavy Truhengerät SRF25ZS-W | 2 x SRF35ZS-W | SRF50ZSX-W | 2.5 kW | 2 x 3.5 kW | 5.0 kW
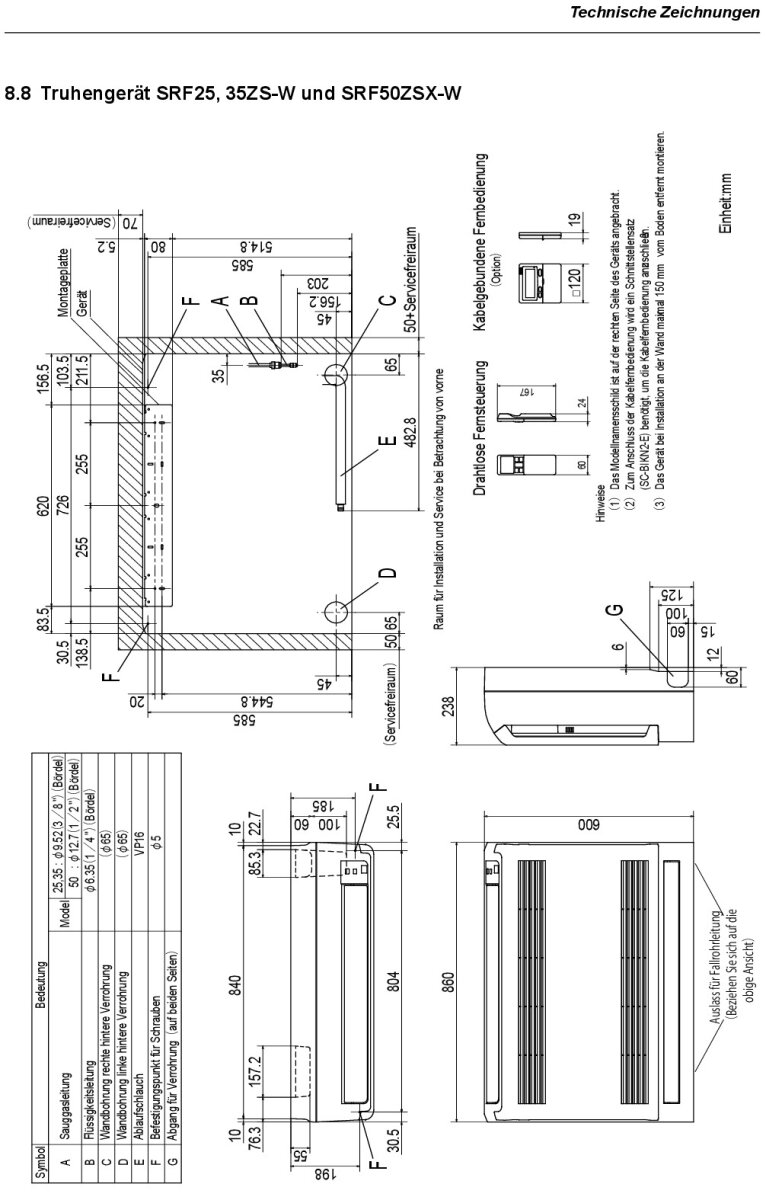
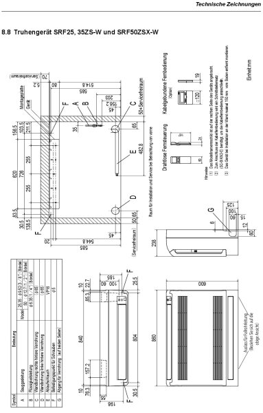
Das Innengerät ist ein anschluss- und betriebsbereites Klimagerät zum Kühlen und Heizen geeignet für eine Aufstellung auf dem Boden oder Wandmontage (bis zu ca. 15 cm über Fußboden) an Raumwänden.
Geräteaufbau
Ein besonders geräuscharm laufender DC-Radialventilator mit Überhitzungsschutz saugt die Raumluft über regenerierbare Filter an. Der integrierte, antiallergisch wirkende Enzym-Filter sowie ein photokatalytisch wirkender Filter reinigen die Raumluft. Ein mit Turmalin beschichtetes Blech erzeugt zusätzlich antibakteriell wirkende negativ geladene Ionen.
Der Austritt der konditionierten Luft erfolgt über zwei Luftauslässe mit jeweils verstellbaren und voreinstellbaren Luftleitlamellen, deren Öffnung je nach Betriebsart eingestellt werden kann, was zu einer besonders komfortablen Luftverteilung bei Kühl- bzw. Heizbetrieb führt. Eine definierte Fixierung der Pendellamellen in einer beliebigen Stellung ist möglich. Für den Betrieb der Pendellamelle stehen wahlweise die Funktionen Auto, Memory, Up/Down und Luftauslassauswahl zur Verfügung.
Das Truhengerät ist anschließbar an Außengeräte mit dem umweltfreundlichen Kältemittel R32.
Steuerung und Regelung
Das Gerät enthält sämtliche zum automatischen Betrieb notwendigen Einrichtungen sowie Kontroll- und Regelorgane. Die Mikroprozessor Regelung mit integrierter Fuzzy-Logik passt die erzeugte Leistung den aktuellen Konditionen und Anforderungen im Raum schnell und mit hoher Stabilität an. Das Gerät verfügt über einen speziellen Betrieb zur Entfeuchtung. Der Vereisungsschutz gewährleistet einen optimalen Wärmeübergang am Wärmetauscher. Ein differenzierendes Selbstdiagnose-System überwacht die Anlage und zeigt eventuelle Störungen durch einen alphanumerischen Code an der Fernbedienung an. Der Betriebszustand und Funktionsstörungen werden mittels verschiedenfarbiger LED angezeigt. Eine Wiedereinschaltautomatik nach Spannungsausfall ist serienmäßig verfügbar.
Die Bedienung erfolgt über die im Standard enthaltene Infrarotfernbedienung, die neben einen ON/OFF-Timer auch über eine Wochen-Timer-Funktion verfügt. Die Betriebsarten Kühlen/Entfeuchten/Heizen/Auto, Eco und Hi-Power, Solltemperatur, Lüfterstufe und Lamellenpendel können programmiert werden. Diese Funktionen können mit einer Tastensperre belegt werden.
Die Komfort-Timer-Funktion vergleicht bereits vor dem Einschaltzeitpunkt Raum- und Solltemperatur und schaltet das Klimagerät gegebenenfalls bereits früher ein. Um schnell die gewünschten Raumtemperaturen zu erreichen, aktiviert die Hi-Power-Funktion einen 15-minütigen kontinuierlichen Betrieb mit Maximalleistung. Die Eco-Funktion erzielt dagegen einen besonders sparsamen Betrieb. Der aktivierbare Selbsttrocknungsmodus beschleunigt die Trocknung der durchströmten Innengeräteoberflächen im Anschluss an den herkömmlichen Innengerätebetrieb. Eine Sleep-Timer-Funktion schaltet das Gerät nach einer programmierten Laufzeit ab.
Die Backup-Funktion ermöglicht einen Automatikbetrieb bei Standardkonditionen. Die Steuerung des Gerätes kann alternativ über eine optionale Kabel-Fernbedienung erfolgen.
Besondere Merkmale
- Sehr leiser Betrieb
- Optimale Luftverteilung je nach Kühl- oder Heizbetrieb durch zwei Luftauslässe (oben und unten)
- Enzym-Filter und photokatalytischer, waschbarer Geruchsfilter zur Reinigung der Raumluft
- Wiedereinschaltung nach Spannungsausfall
- Selbstdiagnosesystem
- Inklusive Infrarotfernbedienung
- Anschließbar an R32 Außengeräte
Außengerät Mitsubishi Heavy SCM100ZS-W | 10.0 kW | 12.0 kW
Das Gehäuse ist selbsttragend und besteht aus einem stabilen verzinkten Grundrahmen und leicht zu entfernenden einbrennlackierten Paneelen. Die Teile und Bleche sind mit Edelstahlschrauben verbunden. Ein leistungsgeregelter Twin-Rollkolben-Verdichter passt seine Drehzahl der geforderten Leistung an. Der hocheffiziente und extrem leise laufende DC-Inverter-Kompressor ist auf Schwingungsdämpfern gelagert sowie vor Überhitzung und Taktung geschützt.
Der Kältekreislauf besteht neben dem Verdichter u. a. aus folgenden Komponenten: 4-Wege-Umschaltventil, Verflüssiger aus Kupferrohr mit aufgepressten Aluminiumlamellen, elektronische Expansionsventile je Innengerät, Kapillare, Flüssigkeitsabscheider, Filter, Absperrventile, Schraderventile und Temperaturfühler. Die Anlage verfügt über eine automatische Abtaufunktion im Wärmepumpenbetrieb.
Normen, Richtlinien und Zertifikate
- Das Gerät wurde in Großserienfertigung gemäß ISO 9001 produziert.
- Das Gerät ist CE zertifiziert.
- Das Gerät erfüllt die Anforderungen des FGK-Qualitätssiegels.
- Das Gerät ist durch Eurovent zertifiziert.
- Das Gerät erfüllt die Anforderungen der EU Ecodesign-Richtlinie.
Technische Änderungen und Irrtümer vorbehalten ! Zwischenverkauf vorbehalten !
Der Austritt von Kältemittel trägt zum Klimawandel bei. Kältemittel mit geringerem Treibhauspotential (GWP) tragen im Fall eines Austretens weniger zur Erderwärmung bei als solche mit höherem Treibhauspotential (GWP). Ein Austreten von 1 kg dieses Kältemittels hätte somit eine dem GWP-Wert des Kältemittels entsprechend größere Auswirkungen auf die Erderwärmung als 1 kg CO2, bezogen auf hundert Jahre. Keine Arbeiten am Kältekreislauf vornehmen oder das Gerät zerlegen – stets Fachpersonal hinzuziehen.
| Produkteigenschaft | Wert |
|---|---|
| Hersteller: | Mitsubishi Heavy |
| Kategorie: | 4 Truhengeräte |
| Artikelnummer: | 18722 |
| GTIN: | 4251459819057 |
| Ausführung Inneneinheit: | |
| Kältemittel Typ: | |
| Energieeffizienz Kühlen: | |
| Energieeffizienz Heizen: | |
| Einsatzbereich Heizen: | |
| Kühl-/Heizleistung IG: | |
| WiFi/WLAN Funktion: | |
| Anzahl der Innengeräte: | |
| Kühl-/Heizleistung AG: | |
| Schalldruckpegel min.: | |
| Einsatzbereich Kühlen: | |
| Empfohlene Raumgröße: | |
| Versandgewicht: | 90,00 kg |
| Artikelgewicht: | 165,00 kg |