Mitsubishi Heavy Klimaanlagen Set für 3 Räume mit je 35 | 35 | 50 m²
Innengeräte Mitsubishi Heavy Kanalgerät 2 x SRR35ZS-W | SRR50ZS-W | 3.5 kW | 3.5 kW | 5.0 kW
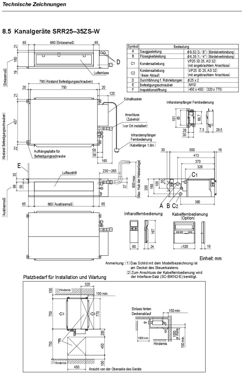
Das Innengerät ist ein anschluss- und betriebsbereites Klimagerät zum Kühlen und Heizen für die Montage in einer abgehängten Zwischendecke, inkl. Infrarotfernbedienung.
Geräteaufbau
Ein leise laufender DC-Radialventilator mit Überhitzungsschutz saugt die Raumluft über einen integrierten, regenerierbaren Filter von unten an. Der Austritt der konditionierten Luft erfolgt nach vorn. Das Kanalgerät ist anschließbar an Außengeräte mit dem umweltfreundlichen Kältemittel R32.
Steuerung und Regelung
Das Gerät enthält sämtliche zum automatischen Betrieb notwendigen Einrichtungen sowie Kontroll- und Regelorgane. Die Mikroprozessor Regelung mit integrierter Fuzzy-Logik passt die erzeugte Leistung den aktuellen Konditionen und Anforderungen im Raum schnell und mit hoher Stabilität an. Das Gerät verfügt über einen speziellen Betrieb zur Entfeuchtung. Der Vereisungsschutz gewährleistet einen optimalen Wärmeübergang am Wärmetauscher. Ein differenzierendes Selbstdiagnose-System überwacht die Anlage und zeigt eventuelle Störungen durch einen alphanumerischen Code an der Fernbedienung an. Der Betriebszustand und Funktionsstörungen werden mittels verschiedenfarbiger LED angezeigt. Eine Wiedereinschaltautomatik nach Spannungsausfall ist serienmäßig verfügbar.
Die Bedienung erfolgt über die im Standard enthaltene Infrarotfernbedienung, die über einen ON/OFF-Timer verfügt. Die Betriebsarten Kühlen/Entfeuchten/Heizen/Auto, Eco und Hi-Power, Solltemperatur und Lüfterstufe können programmiert werden. Um schnell die gewünschten Raumtemperaturen zu erreichen, aktiviert die Hi-Power-Funktion einen 15-minütigen kontinuierlichen Betrieb mit Maximalleistung. Die Eco-Funktion erzielt dagegen einen besonders sparsamen Betrieb. Die Backup-Funktion ermöglicht einen Automatikbetrieb bei Standardkonditionen. Die Steuerung des Gerätes kann alternativ über eine optionale Kabelfernbedienung erfolgen.
Besondere Merkmale
- Ansaug von unten und Ausblas horizontal
- Rückluft-Ansaug von hinten optional
- Sehr flaches Design für geringe Deckenhöhen
- Schnellheizfunktion
- Wiedereinschaltung nach Spannungsausfall
- Selbstdiagnosesystem
- Anschließbar an R32 Außengeräte
Außengerät Mitsubishi Heavy SCM80ZS-W | 8.0 kW | 9.3 kW
Das Gehäuse ist selbsttragend und besteht aus einem stabilen verzinkten Grundrahmen und leicht zu entfernenden einbrennlackierten Paneelen. Die Teile und Bleche sind mit Edelstahlschrauben verbunden. Ein leistungsgeregelter Twin-Rollkolben-Verdichter passt seine Drehzahl der geforderten Leistung an. Der hocheffiziente und extrem leise laufende DC-Inverter-Kompressor ist auf Schwingungsdämpfern gelagert sowie vor Überhitzung und Taktung geschützt.
Der Kältekreislauf besteht neben dem Verdichter u. a. aus folgenden Komponenten: 4-Wege-Umschaltventil, Verflüssiger aus Kupferrohr mit aufgepressten Aluminiumlamellen, elektronische Expansionsventile je Innengerät, Kapillare, Flüssigkeitsabscheider, Filter, Absperrventile, Schraderventile und Temperaturfühler. Die Anlage verfügt über eine automatische Abtaufunktion im Wärmepumpenbetrieb.
Normen, Richtlinien und Zertifikate
- Das Gerät wurde in Großserienfertigung gemäß ISO 9001 produziert.
- Das Gerät ist CE zertifiziert.
- Das Gerät erfüllt die Anforderungen des FGK-Qualitätssiegels.
- Das Gerät ist durch Eurovent zertifiziert.
- Das Gerät erfüllt die Anforderungen der EU Ecodesign-Richtlinie.
Technische Änderungen und Irrtümer vorbehalten ! Zwischenverkauf vorbehalten !
Der Austritt von Kältemittel trägt zum Klimawandel bei. Kältemittel mit geringerem Treibhauspotential (GWP) tragen im Fall eines Austretens weniger zur Erderwärmung bei als solche mit höherem Treibhauspotential (GWP). Ein Austreten von 1 kg dieses Kältemittels hätte somit eine dem GWP-Wert des Kältemittels entsprechend größere Auswirkungen auf die Erderwärmung als 1 kg CO2, bezogen auf hundert Jahre. Keine Arbeiten am Kältekreislauf vornehmen oder das Gerät zerlegen – stets Fachpersonal hinzuziehen.
| Produkteigenschaft | Wert |
|---|---|
| Hersteller: | Mitsubishi Heavy |
| Kategorie: | 3 Kanalgeräte |
| Artikelnummer: | 18682 |
| GTIN: | 4251459824167 |
| Ausführung Inneneinheit: | |
| Gerätetyp: | |
| Kältemittel Typ: | |
| Energieeffizienz Kühlen: | |
| Energieeffizienz Heizen: | |
| Einsatzbereich Heizen: | |
| WiFi/WLAN Funktion: | |
| Kühl-/Heizleistung IG: | |
| Anzahl der Innengeräte: | |
| Kühl-/Heizleistung AG: | |
| Schalldruckpegel min.: | |
| Einsatzbereich Kühlen: | |
| Empfohlene Raumgröße: | |
| Versandgewicht: | 75,00 kg |
| Artikelgewicht: | 126,00 kg |