Mitsubishi Electric Klimaanlagen Wandgerät für 1 Zimmer mit 25 - 30 m²
zum Kühlen | Heizen | Entfeuchten | Luftreinigen | WiFi.
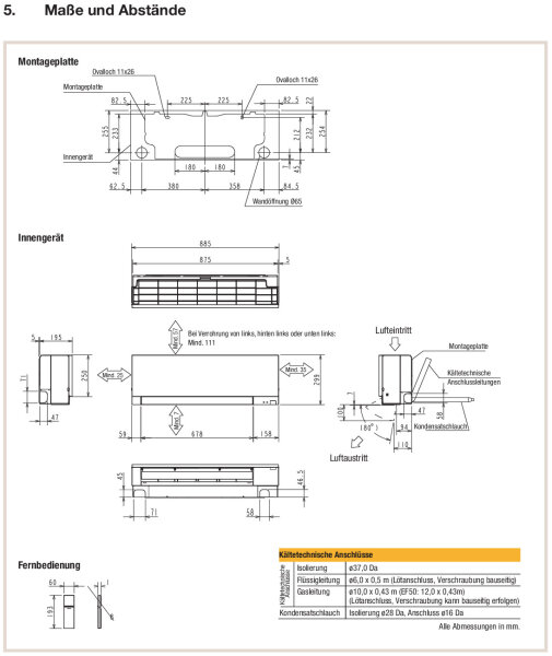
Innengerät Mitsubishi Diamond Wandgerät MSZ-EF25VGKS | 2.5 kW
Das schlanke Design ermöglicht eine harmonische visuelle Integration in das Raumbild. Auch der flüsterleise Betrieb durch einen Schalldruckpegel von nur 21 Dezibel sorgt für Harmonie – er erlaubt den Einsatz auch in geräuschsensiblen Wohn- und Arbeitsräumen. Und zu guter Letzt darf sich die Umwelt freuen: Durch den Einsatz innovativer Invertertechnologie erreichen die Premium-Design-Wandgeräte die Energieeffizienzklasse A+++ im Kühl- und A++ im Heizbetrieb.
Formschönes Gehäuse in Flat Panel Design. Sämtliche Gehäuseteile sind abnehmbar. Einfache Montage durch Montageplatte in die das Gerät eingehängt wird.
Silber-Ionen-Luftreinigungsfilter
Die Silber-Ionen-Technologie erzielt eine extrem hohe Luftreinigung, die Bakterien, Pollen und Allergene wirkungsvoll aus der Raumluft abscheidet. Der äußerst hohe Abscheidegrad fängt Partikel mit einer Größe von 0,01µm ab.
Luftauslass nach vorn, vertikal über Luftleitlamellen motorbetrieben. Die horizontale Luftverteilung kann manuell nach links und/oder rechts eingestellt werden.
Wärmetauscher Hochleistungswärmetauscher, als Verdampfer/ Verflüssiger, aus innen beripptem Kupferrohr mit aufgepressten Aluminiumlamellen gefertigt, mit Bördelanschlüssen. Kältesystem getrocknet, evakuiert und mit Schutzgas gefüllt. Kondensatwanne gegen Schwitzwasser gedämmt. Ventilator mit extrem leise laufendem Querstromgebläse, 5-stufig umschaltbar, direkt angetrieben über DC Inverter Motor. Dynamisch ausgewuchtet und schwingungs-gedämmt gelagert. Steuerung komplett nach den gängigen Vorschriften verdrahtet und mit einer Klemmleiste für Netzeinspeisung und Steuerung. Eine Steuerplatine schaltet und überwacht alle Funktionen.
Integrierter MELCLoud WiFi-Adapter ermöglicht eine Kommunikation mit den Klimageräten via Smartphones und Tablet-PCs.
Funktionen:
- Leicht bedienbare Infrarotfernbedienung im Lieferumfang
- Überwachung der eingestellten Solltemperatur von 16°C bis 31°C
- Lüften, Kühlen, Heizen und Entfeuchtung der Raumluft (nicht geregelt)
- Automatische Ventilatorsteuerung in Abhängigkeit der Raumtemperatur
- Automatische, optimale Einstellung der Luftleitlamellen je nach gewählter Funktion
- Speicherung aller eingegebenen Werte bei Spannungsausfall
- Automatischer Wiederanlauf nach Spannungsausfall
- Timersteuerung (Ein und/oder Aus)
- Fehlerdiagnosesystem
- Vereisungsschutzfunktion
- I-save - Speichert den bevorzugten Betriebszustand
- Funktion zum Speichern der bevorzugten Einstellung
- Minimal Einstellbare Temperatur im Heizbetrieb von 10°C dient als energiesparender Auskühlschutz
Technische Änderungen und Irrtümer vorbehalten ! Zwischenverkauf vorbehalten !
Der Austritt von Kältemittel trägt zum Klimawandel bei. Kältemittel mit geringerem Treibhauspotential (GWP) tragen im Fall eines Austretens weniger zur Erderwärmung bei als solche mit höherem Treibhauspotential (GWP). Ein Austreten von 1 kg dieses Kältemittels hätte somit eine dem GWP-Wert des Kältemittels entsprechend größere Auswirkungen auf die Erderwärmung als 1 kg CO2, bezogen auf hundert Jahre. Keine Arbeiten am Kältekreislauf vornehmen oder das Gerät zerlegen – stets Fachpersonal hinzuziehen.
| Produkteigenschaft | Wert |
|---|---|
| Hersteller: | Mitsubishi Electric |
| Kategorie: | Wandgeräte |
| Artikelnummer: | 17001 |
| GTIN: | 4251459809836 |
| Ausführung Inneneinheit: | |
| Kältemittel Typ: | |
| Luftfilter: | |
| Kältetechnischer Anschluss Flüssigkeitsleitung: | |
| Spannungversorgung Innengerät: | |
| Kühlungsart: | |
| Kältetechnischer Anschluss Sauggasleitung: | |
| Spannungseinspeisung: | |
| Kabelverbindung zwischen Innengerät und Außengerät: | |
| Wärmeisolierung, dampfdiffusionsdicht: | |
| Fernbedienung inklusive: | |
| WiFi/WLAN Funktion: | |
| WiFi/WLAN mit Sprachsteuerung: | |
| Kondensatpumpe intern: | |
| Innengerät für Anwendung: | |
| Kühl-/Heizleistung IG: | |
| Kondensatleitung Durchmesser in mm: | |
| Kältemitteleinspritzung: | |
| Fernbedienung Typ: | |
| Empfohlene Raumgröße: | |
| Schalldruckpegel min.: | |
| Absicherung: | |
| Versandgewicht: | 15,00 kg |
| Artikelgewicht: | 11,50 kg |