Mitsubishi Klimaanlagen Set für 1 Zimmer mit 60 - 65 m²
zum Kühlen | Heizen | Entfeuchten | Luftreinigen.
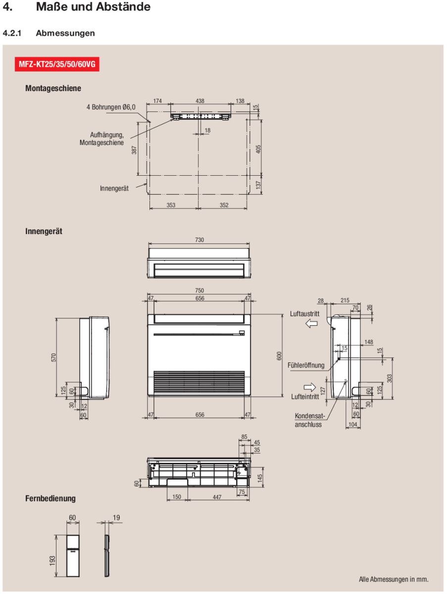
Innengerät Mitsubishi Electric Truhengerät Kompakt MFZ-KT60VG | 6.1 kW | 7.0 kW
Das Truhengerät der Kompakt Serie wird in Bodennähe an der Wand montiert oder ganz einfach aufgestellt. Mit einem klaren, eleganten Design und moderaten Abmessungen passt sich das Truhengerät sehr gut in jeden Raum ein, ob Privat, Gewerbe oder in der Ferienwohnung. Insbesondere in Räumen mit Dachschrägen oder bei fehlendem Platz in oberen Wandbereichen eignet sich diese Geräteausführung ideal. Es wird entweder auf Putz oder halb eingelassen installiert
Das Truhengerät MFZ-KT ist besonders für Anwendungen geeignet, in denen sowohl der Kühl- als auch der Heizbetrieb regelmäßig zum Einsatz kommt. Wie ein Heizkörper in Bodennähe aufstellbar.
Multiflow-Vane-Funktion
gleichzeitige Verteilung der Luft nach oben und unten im Heizbetrieb, um eine ideale Luftumwälzung im Raum zu gewährleisten und eine schnelle Erwärmung des Raums zu erreichen. Im Kühlbetrieb erfolgt der Luftaustritt nur nach oben um eine bestmögliche Effizienz zu erreichen
Luftreinigungsfilter
Filtert Staub aus der Raumluft und beugt einer Verschmutzung des Wärmetauschers vor. Die Wirkung bleibt auch nach Abwaschen des Filters vollständig erhalten.
Silber-Ionen-Luftreinigungsfilter
Die Silber-Ionen-Technologie erzielt eine extrem hohe Luftreinigung, die Bakterien, Pollen und Allergene wirkungsvoll aus der Raumluft abscheidet. Der äußerst hohe Abscheidungsgrad fängt Partikel mit einer Größe von 0,01µm ab.
Flexible Installation
Drei mögliche Installationsarten: stehend, eingebaut, wandhängend.
i-save
Speichert den bevorzugten Betriebszustand
Kältemitteldetektor
Integrierter Kältemitteldetektor zur frühzeitigen Erkennung möglicher Leckagen
Technische Änderungen und Irrtümer vorbehalten ! Zwischenverkauf vorbehalten !
Der Austritt von Kältemittel trägt zum Klimawandel bei. Kältemittel mit geringerem Treibhauspotential (GWP) tragen im Fall eines Austretens weniger zur Erderwärmung bei als solche mit höherem Treibhauspotential (GWP). Ein Austreten von 1 kg dieses Kältemittels hätte somit eine dem GWP-Wert des Kältemittels entsprechend größere Auswirkungen auf die Erderwärmung als 1 kg CO2, bezogen auf hundert Jahre. Keine Arbeiten am Kältekreislauf vornehmen oder das Gerät zerlegen – stets Fachpersonal hinzuziehen.
| Produkteigenschaft | Wert |
|---|---|
| Hersteller: | Mitsubishi Electric |
| Kategorie: | Truhengeräte |
| Artikelnummer: | 15135 |
| Ausführung Inneneinheit: | |
| Gerätetyp: | |
| Kältemittel Typ: | |
| Luftfilter: | |
| Kältetechnischer Anschluss Flüssigkeitsleitung: | |
| Spannungversorgung Innengerät: | |
| Kühlungsart: | |
| Spannungseinspeisung: | |
| Kabelverbindung zwischen Innengerät und Außengerät: | |
| Wärmeisolierung, dampfdiffusionsdicht: | |
| Fernbedienung inklusive: | |
| Innengerät für Anwendung: | |
| Kondensatpumpe intern: | |
| Kältetechnischer Anschluss Sauggasleitung: | |
| Kondensatleitung Durchmesser in mm: | |
| WiFi/WLAN Funktion: | |
| WiFi/WLAN mit Sprachsteuerung: | |
| Kältemitteleinspritzung: | |
| Fernbedienung Typ: | |
| Kühl-/Heizleistung IG: | |
| Schalldruckpegel min.: | |
| Absicherung: | |
| Empfohlene Raumgröße: | |
| Versandgewicht: | 15,00 kg |
| Artikelgewicht: | 15,00 kg |