Mitsubishi Electric Klimaanlage für 4 Räume mit je 15 | 35 | 35 | 35 m²
zum Kühlen | Heizen | Lüften | Luftreinigen.
Innengeräte Mitsubishi Electric 4-Wege-Deckenkassette Euroraster SLZ-M15FA | 3 x SLZ-M35FA | 1.5 kW | 3 x 3.5 kW
Die 4-Wege-Deckenkassette Euroraster ist durch ihre geringe Einbautiefe und vereinfachte Einhängevorrichtung zur Montage mit verkürzten Arbeitszeiten optimiert.
Durch die Optionale Personenerkennung lässt sich ein gewünschter Luftstrom einrichten je nach Belieben des Anwenders. Weiter erkennt der Sensor auch die Anzahl der im Raum befindlichen Personen und trägt damit zum Energiesparen bei.
Optimal für niedrige Decken
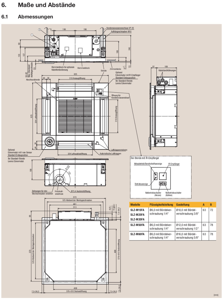
insbesondere bei niedrigen Deckenhöhen die richtige Wahl durch die geringe Einbauhöhe von nur 245 mm
Gehäuse
aus Stahlblech verzinkt mit Wärmedämmung. Einfache Montage. Alle wichtigen Teile sind mit entsprechendem Wartungsfreiraum von unten zugänglich. Besonders einfache Installation des Panels durch spezielles Montagesystem.
Luftansaugung
von unten über eine optionale Blende, herausklappbares Gitter mit dahinterliegendem Langzeitfilter mit hoher Standzeit.
Luftauslass
erfolgt 4-seitig. Die Kassette kann durch Verschließen der Zuluftöffnungen auch 2- oder 3-wegig eingesetzt werden. Luftleitlamellen motorbetrieben und auf jeder Seite individuell einstellbar für komfortable, zugfreie Lufteinbringung. Coanda Effekt bei horizontaler Luftklappenstellung. Frischluftanschluss ist standardmäßig vorbereitet.
Wärmetauscher
Hochleistungswärmetauscher, als Verdampfer/ Verflüssiger, aus Kupferrohr mit aufgepressten Aluminiumlamellen gefertigt, mit Bördelanschlüssen. Kältesystem getrocknet, evakuiert und mit Schutzgas gefüllt. Kondensatwanne gegen Schwitzwasser gedämmt.
Kondensatpumpe
eingebaut im Gerät, mit Kondensatsensor, als Schleuderpumpe mit 850 mm Förderhöhe, weiterführende Kondensatleitung mit Gefälle.
Ventilator
direktgetrieben über Invertermotor, mit einem extrem leise laufendem Tangentiallüfter in 3D Turbo Fan Technologie, schwingungsgedämmt gelagert und dynamisch ausgewuchtet, 3-stufig ,umschaltbar.
Steuerung
komplett nach den gängigen Vorschriften verdrahtet und mit einer Klemmleiste für Netzeinspeisung und Steuerung versehen.
Eine Steuerplatine schaltet und überwacht alle Funktionen.
Funktionen
Überwachung der eingestellten Solltemperatur von 17°C bis 32°C Lüften, Kühlen, Heizen und Entfeuchten der Raumluft (nicht geregelt) Automatische Ventilatorsteuerung in Abhängigkeit der Raumtemperatur Automatische, optimale Einstellung der Luftleitlamellen je nach gewählter Funktion Speicherung aller eingegebenen Werte bei Spannungsausfall.
Einfache Montage
dank speziellem Montagesystem ist die Installation der Blende durch eine einzelne Person möglich
Optionaler 3D i-see Sensor
automatischer Luftausblas bei Personenerkennung und Energieeffizienz dank Anwesenheitserkennung
- Infrarotfernbedienung mit Wochentimerfunktion im Lieferumfang enthalten
- Horizontaler Luftstrom - sechs verschiedene Ausblaswinkel
- Einfache Montage - dank speziellem Montagesystem ist die Installation durch eine einzelne Person möglich
- Einsatz auch bei niedrigen Deckenhöhen möglich
- Automatischer Wiederanlauf nach Spannungsausfall
- Fehlerdiagnosesystem
- Vereisungsschutzfunktion
- Kondensatpumpensteuerung
- 3 Minuten Anlaufverzögerung für den Verdichter nach Wiedereinschaltung.
- Überwachung der eingestellten Solltemperatur von 17°C bis 32°C
- Lüften, Kühlen, Heizen und Entfeuchten der Raumluft (nicht geregelt)
- Automatische Ventilatorsteuerung in Abhängigkeit der Raumtemperatur
- Automatische, optimale Einstellung der Luftleitlamellen je nach gewählter Funktion
- Speicherung aller eingegebenen Werte bei Spannungsausfall
Außengerät Mitsubishi Electric MXZ-4F72VF | 7.2 kW | 8.6 kW
Die Außengeräte der Serie SUZ-M von Mitsubishi Electric sind vielseitig mit einem gewünschtem Innengeräten einsetzbar. Die Geräte sind mit Kältemittel R32 zu verwenden.
Gehäuse und Rahmen bestehen aus stabilen verzinkten Stahlblechen mit einer zusätzlichen witterungsbeständigen Polyester-Einbrennlackierung und innenliegender Schalldämmung. Großflächige abnehmbare Verkleidungselemente.
Direktgetriebener Axialventilator aus Kunststoff, drehzahlgeregelt über thermostatische Kondensationsdruckregelung, statisch und dynamisch ausgewuchtet mit horizontalem Berührungsschutzgitter. Wettergeschützter Antriebsmotor, wartungsfrei mit thermischem Überlastschutz ausgerüstet.
Sauggasgekühlter Rollkolbenverdichter, drehzahlgeregelt über Inverter, auf Schwingungsdämpfern montiert, leise laufend, mit hohem Wirkungsgrad, Motorschutz gegen Überstrom und thermische Überlastung, mit Schalldämmung ausgestattet. Saugseitig durch einen großzügig bemessenen Flüssigkeitsabscheider vor Flüssigkeitsschlägen geschützt.
Blende SLP-2FALM
Formschöne Abdeckblende aus Kunststoff gefertigt. Die Abdeckblende wurde für eine optimale Verteilung des Luftstroms unter der Decke entwickelt. Diese Blende mit Infrarotfernbedienung von Mitsubishi Electric bindet Ihre Deckenkassette optisch anspruchsvoll, elegant und doch unauffällig in das Deckenbild des Raumes ein.
Herausklappbarer Langzeitfilter
von unten herausklappbares Gitter mit dahinterliegendem Langzeitfilter
lange Lebensdauer
wartungsfreundliche Handhabung
Kompfortabler Luftauslass
kann durch verschließen der Zuluftöffnungen auch 2- oder 3-wegig eingesetzt werden
motorbetriebene Luftleitlamellen sorgen für komfortable, zugfreie Lufteinbringung
Technische Änderungen und Irrtümer vorbehalten ! Zwischenverkauf vorbehalten !
Der Austritt von Kältemittel trägt zum Klimawandel bei. Kältemittel mit geringerem Treibhauspotential (GWP) tragen im Fall eines Austretens weniger zur Erderwärmung bei als solche mit höherem Treibhauspotential (GWP). Ein Austreten von 1 kg dieses Kältemittels hätte somit eine dem GWP-Wert des Kältemittels entsprechend größere Auswirkungen auf die Erderwärmung als 1 kg CO2, bezogen auf hundert Jahre. Keine Arbeiten am Kältekreislauf vornehmen oder das Gerät zerlegen – stets Fachpersonal hinzuziehen.
| Produkteigenschaft | Wert |
|---|---|
| Hersteller: | Mitsubishi Electric |
| Kategorie: | 4 und mehr 4-Wege-Deckenkassetten-Euroraster |
| Artikelnummer: | 14968 |
| GTIN: | 4251459823337 |
| Ausführung Inneneinheit: | |
| Kältemittel Typ: | |
| Energieeffizienz Kühlen: | |
| Energieeffizienz Heizen: | |
| Kühl-/Heizleistung IG: | |
| Einsatzbereich Heizen: | |
| WiFi/WLAN Funktion: | |
| WiFi/WLAN mit Sprachsteuerung: | |
| Anzahl der Innengeräte: | |
| Kühl-/Heizleistung AG: | |
| Schalldruckpegel min.: | |
| Einsatzbereich Kühlen: | |
| Empfohlene Raumgröße: | |
| Versandgewicht: | 90,00 kg |
| Artikelgewicht: | 118,00 kg |