Mitsubishi Electric 4-Wege-Deckenkassette für 1 Raum mit 15 - 20 m²
zum Kühlen | Heizen | Lüften | Luftreinigen.
Innengerät Mitsubishi Electric 4-Wege-Deckenkassette Euroraster SLZ-M15FA| Blende SLP-2FA | 1.5 kW | 1.8 kW
Die 4-Wege-Deckenkassette ist durch ihre geringe Einbautiefe und vereinfachte Einhängevorrichtung zur Montage mit verkürzten Arbeitszeiten optimiert.
Durch die Optionale Personenerkennung lässt sich ein gewünschter Luftstrom einrichten je nach Belieben des Anwenders. Weiter erkennt der Sensor auch die Anzahl der im Raum befindlichen Personen und trägt damit zum Energiesparen bei.
Optimal für niedrige Decken
insbesondere bei niedrigen Deckenhöhen die richtige Wahl durch die geringe Einbauhöhe von nur 245 mm
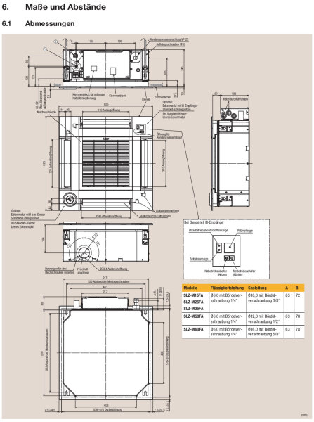
Gehäuse
aus Stahlblech verzinkt mit Wärmedämmung. Einfache Montage. Alle wichtigen Teile sind mit entsprechendem Wartungsfreiraum von unten zugänglich. Besonders einfache Installation des Panels durch spezielles Montagesystem.
Luftansaugung
von unten über eine optionale Blende, herausklappbares Gitter mit dahinterliegendem Langzeitfilter mit hoher Standzeit.
Luftauslass
erfolgt 4-seitig. Die Kassette kann durch Verschließen der Zuluftöffnungen auch 2- oder 3-wegig eingesetzt werden. Luftleitlamellen motorbetrieben und auf jeder Seite individuell einstellbar für komfortable, zugfreie Lufteinbringung. Coanda Effekt bei horizontaler Luftklappenstellung. Frischluftanschluss ist standardmäßig vorbereitet.
Wärmetauscher
Hochleistungswärmetauscher, als Verdampfer/ Verflüssiger, aus Kupferrohr mit aufgepressten Aluminiumlamellen gefertigt, mit Bördelanschlüssen. Kältesystem getrocknet, evakuiert und mit Schutzgas gefüllt. Kondensatwanne gegen Schwitzwasser gedämmt.
Kondensatpumpe
eingebaut im Gerät, mit Kondensatsensor, als Schleuderpumpe mit 850 mm Förderhöhe, weiterführende Kondensatleitung mit Gefälle.
Ventilator
direktgetrieben über Invertermotor, mit einem extrem leise laufendem Tangentiallüfter in 3D Turbo Fan Technologie, schwingungsgedämmt gelagert und dynamisch ausgewuchtet, 3-stufig ,umschaltbar.
Steuerung
komplett nach den gängigen Vorschriften verdrahtet und mit einer Klemmleiste für Netzeinspeisung und Steuerung versehen.
Eine Steuerplatine schaltet und überwacht alle Funktionen.
Funktionen
Überwachung der eingestellten Solltemperatur von 17°C bis 32°C Lüften, Kühlen, Heizen und Entfeuchten der Raumluft (nicht geregelt) Automatische Ventilatorsteuerung in Abhängigkeit der Raumtemperatur Automatische, optimale Einstellung der Luftleitlamellen je nach gewählter Funktion Speicherung aller eingegebenen Werte bei Spannungsausfall.
Einfache Montage
dank speziellem Montagesystem ist die Installation der Blende durch eine einzelne Person möglich
Optionaler 3D i-see Sensor
automatischer Luftausblas bei Personenerkennung und Energieeffizienz dank Anwesenheitserkennung
- Horizontaler Luftstrom - sechs verschiedene Ausblaswinkel
- Einfache Montage - dank speziellem Montagesystem ist die Installation durch eine einzelne Person möglich
- Einsatz auch bei niedrigen Deckenhöhen möglich
- Automatischer Wiederanlauf nach Spannungsausfall
- Fehlerdiagnosesystem
- Vereisungsschutzfunktion
- Kondensatpumpensteuerung
- 3 Minuten Anlaufverzögerung für den Verdichter nach Wiedereinschaltung.
- Überwachung der eingestellten Solltemperatur von 17°C bis 32°C
- Lüften, Kühlen, Heizen und Entfeuchten der Raumluft (nicht geregelt)
- Automatische Ventilatorsteuerung in Abhängigkeit der Raumtemperatur
- Automatische, optimale Einstellung der Luftleitlamellen je nach gewählter Funktion
- Speicherung aller eingegebenen Werte bei Spannungsausfall
Technische Änderungen und Irrtümer vorbehalten ! Zwischenverkauf vorbehalten !
Der Austritt von Kältemittel trägt zum Klimawandel bei. Kältemittel mit geringerem Treibhauspotential (GWP) tragen im Fall eines Austretens weniger zur Erderwärmung bei als solche mit höherem Treibhauspotential (GWP). Ein Austreten von 1 kg dieses Kältemittels hätte somit eine dem GWP-Wert des Kältemittels entsprechend größere Auswirkungen auf die Erderwärmung als 1 kg CO2, bezogen auf hundert Jahre. Keine Arbeiten am Kältekreislauf vornehmen oder das Gerät zerlegen – stets Fachpersonal hinzuziehen.
| Produkteigenschaft | Wert |
|---|---|
| Hersteller: | Mitsubishi Electric |
| Kategorie: | 4-Wege-Deckenkassette Euro-Raster |
| Artikelnummer: | 13738 |
| Ausführung Inneneinheit: | |
| Gerätetyp: | |
| Kältemittel Typ: | |
| Luftfilter: | |
| Kältetechnischer Anschluss Flüssigkeitsleitung: | |
| Spannungversorgung Innengerät: | |
| Kühlungsart: | |
| Kältetechnischer Anschluss Sauggasleitung: | |
| Spannungseinspeisung: | |
| Wärmeisolierung, dampfdiffusionsdicht: | |
| Kondensatpumpe intern: | |
| Kühl-/Heizleistung IG: | |
| Empfohlene Raumgröße: | |
| Fernbedienung inklusive: | |
| Innengerät für Anwendung: | |
| WiFi/WLAN Funktion: | |
| WiFi/WLAN mit Sprachsteuerung: | |
| Kältemitteleinspritzung: | |
| Kondensatpumpe, Förderhöhe ab Geräteunterkante: | |
| Kondensatleitung Durchmesser in mm: | |
| Schalldruckpegel min.: | |
| Absicherung: | |
| Versandgewicht: | 15,00 kg |
| Artikelgewicht: | 15,00 kg |