Kompakt-Regelstation / Festwertregelset für Fußbodenheizung - mit Pumpe Wilo Yonos Para RS25/6
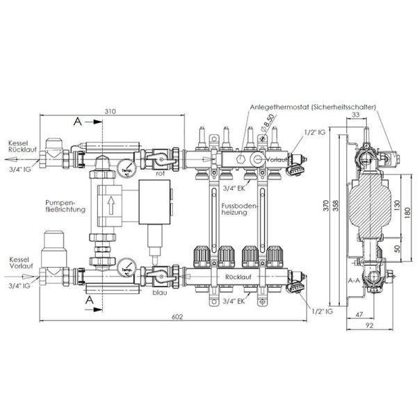
Die Beimischstation versorgt Heizkreisverteiler mit dem benötigten Volumenstrom, regelt und überwacht dabei die Vorlauftemperatur. Zur Montage am heima24-Etagenverteiler mit Hocheffizienzpumpe WILO Para 25-1-130 und externem Sicherheitstemperaturbegrenzer.
Die Beimischstation ist eine flexible und kompakte Pumpengruppe zur direkten Montage an Heizkreisverteilern. Die Station wird insbesondere dann verwendet, wenn die Installation eines zweiten kostenaufwendigen Niedertemperatur-Verrohrungsnetzes vom Kessel zum Fußbodenheizungsverteiler vermieden werden soll. Zusätzlich entfallen der Kesselverteiler und das Mischventil für den Fußbodenkreis im zentralen Technikraum.
Wird die Beimischstation direkt in der Wohnung am Heizkreisverteiler installiert, kann jede Wohnung in Abhängigkeit der individuellen Bedürfnisse des Nutzers und der Art des Bodenbelages dezentral einreguliert werden.
Die Station gewährt so jedem Wohnungsinhaber den optimalen Heizkomfort und sorgt mit dem externen Sicherheitstemperaturbegrenzer für den sicheren Betrieb der Anlage.
Die Beimischstation ist eine ideale Kombination zu Heizkreisverteilern in Kombination mit Radiatorenheizungen.
Vorteile:
Kompakt: platzsparende Bauweise, alle notwendigen Armaturen und Komponenten sind auf engstem Raum verbaut | Sicher: Eigensicherheit der Station mit externem Sicherheitstemperaturbegrenzer | Einfach: einfaches Einstellen und Ablesen der gewünschten Vorlauftemperatur | Effizient: selbstregulierende Hocheffizienzpumpe Wilo Yonos Para RS25/6 - 3 bis 45 W - zur Energieeinsparung
Technische Daten:
Sollwertbereich: 20°C bis 50°C | Max. Betriebstemperatur: 110°C | Max. Betriebsdruck: 10 bar | Sicherheitstemperaturbegrenzer: Temperaturbereich 20 bis 90°C
Durchflussmedien:
Heizungswasser (VDI 2035; SWKI BT 102-01; ÖNORM H 5195–1) | Wasser frei von chemischen Zusätzen
Technische Änderungen und Irrtümer vorbehalten ! Zwischenverkauf vorbehalten !
| Produkteigenschaft | Wert |
|---|---|
| Hersteller: | Industrieware |
| Kategorie: | Zubehör |
| Artikelnummer: | 24561 |